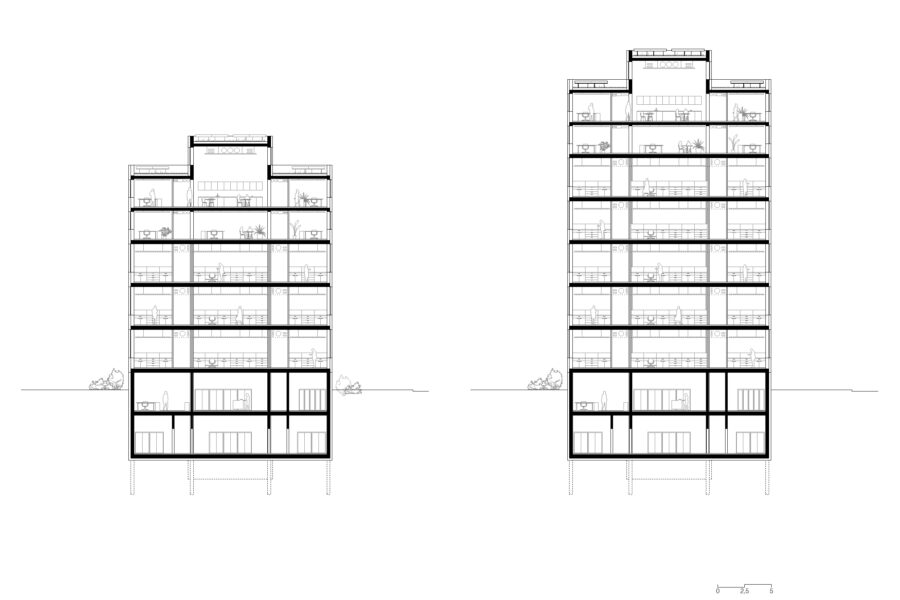
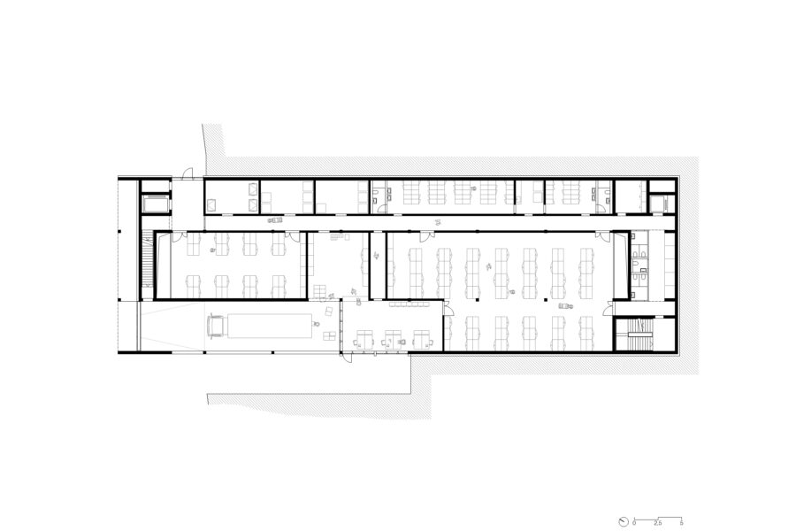
In unmittelbarer Nähe zum Kantonsspital St. Gallen entsteht ein neues Laborzentrum, das die diagnostischen Prozesse des ZLM räumlich und organisatorisch bündelt. Der dreischiffige Baukörper trennt Personen- und Logistikflüsse klar, organisiert Diagnostik und Verwaltung auf kurzen Wegen und schafft eindeutige Adressen für Mitarbeitende, Besuchende und Lieferverkehr. Eine flexible Struktur und eine energieaktive Fassade sichern langfristige Anpassungsfähigkeit und ermöglichen die spätere Erweiterung des Gebäudes.
In unmittelbarer Nähe zum Kantonsspital St. Gallen entsteht ein neues Laborzentrum, das die diagnostischen Prozesse des ZLM räumlich und organisatorisch bündelt. Der dreischiffige Baukörper trennt Personen- und Logistikflüsse klar, organisiert Diagnostik und Verwaltung auf kurzen Wegen und schafft eindeutige Adressen für Mitarbeitende, Besuchende und Lieferverkehr. Eine flexible Struktur und eine energieaktive Fassade sichern langfristige Anpassungsfähigkeit und ermöglichen die spätere Erweiterung des Gebäudes.
Bauherrschaft
Zentrum für Labormedizin
Wettbewerb
Projektwettbewerb im selektiven Verfahren
Flächen
7'800 m²
Team
Renate Walter, Sebastian Lippok, Linus Huber, Olivia Howard, Henry Höchel
Team Fachplannende
Bauingenieur: Lüchinger Meyer Partner AG
Bauphysik: Weber Energie und Bauphysik AG
HKLSE: Jungenergie AG
Brandschutz: Amstein + Walthert AG
Bilder: ZUEND IMAGES