Innovationspark Biel/Bienne, 2017-2021

Innovation entwickelt sich im Herzen der Stadt, da wo die Voraussetzungen für eine interdisziplinäre Zusammenarbeit, der Austausch von Ressourcen und die Fülle an Inspirationen am besten gegeben sind. Da sich die Attraktivität des Arbeitsplatzes nicht nur auf das Gebäude beschränkt, ist die urbane Lage des Innovationsparks - zwischen Bahnhof und See - ein entscheidender Faktor, um vor allem junge Unternehmen und Startups anziehen zu können. Ideen entstehen nicht nur im Innovationspark sondern auch im umliegenden Stadtraum. Umgekehrt profitiert das Quartier von dieser Nutzungsdurchmischung. Neben dem Angebot an Gewerbe- und Wohnen, wird an diesem Standort, Forschung und auch wieder Produktion stattfinden, die im industriellen Sheddach ihren architektonischen Ausdruck findet.

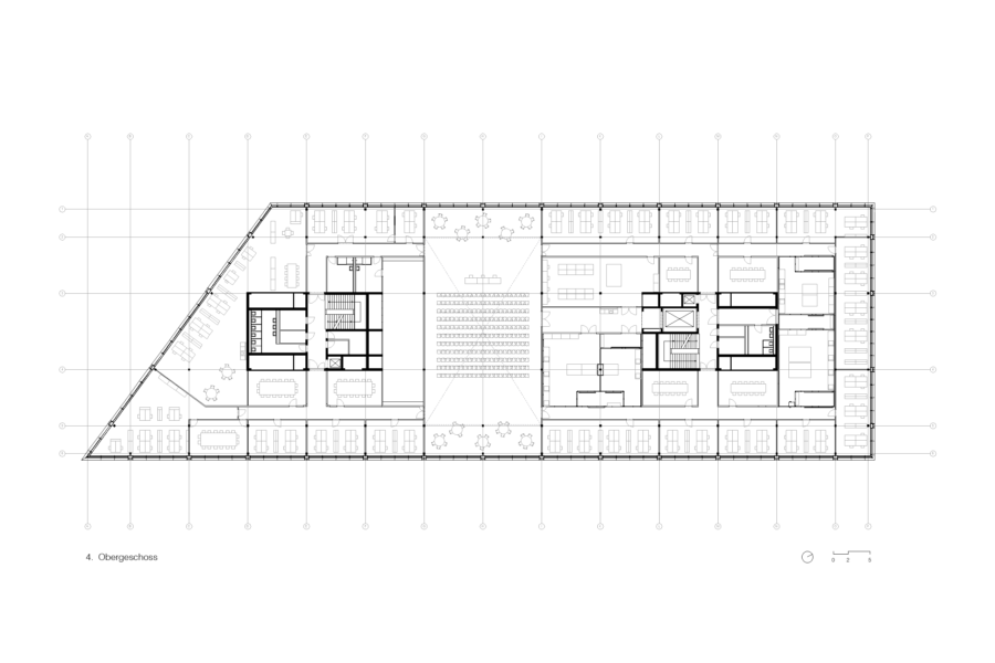
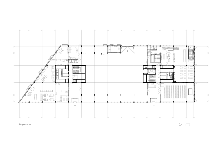
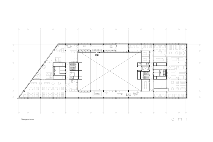
Die programmatische Mitte des Gebäudes bildet die zweigeschossige Halle im Erdgeschoss. Sie ist das Zentrum des halböffentlichen Stadtparterres des Innovationsparks. Durch seine hohe Transparenz und den gut auffindbaren Eingängen, ist es die verknüpfende Ebene zum urbanen gesellschaftlichen Lebens in Biel/Bienne.

Bauherrschaft
Switzerland Innovation Park Biel/Bienne AG
Offener Projektwettbewerb
1. Preis, 2017
Planung/Ausführung
2017-2021
Fläche
20‘200 m² Geschossfläche
Bausumme
48 Mio. CHF, BKP 2
Team
Projekt: Renate Walter, Sebastian Lippok, Zarah Fahrni, Martin Wey, Bryan Graf, Charlotte Henschel
Wettbewerb: Renate Walter, Sebastian Lippok, Felipe Rodriguez
Fachplanende
Baumanagement: Akeret Baumanagement AG
Bauingenieur Wettbewerb: Dr. Lüchinger+Meyer Bauingenieure AG, Zürich
Bauingenieur Ausführung: WAM Planer und Ingenieure AG
HLKSE: Amstein + Walthert Bern
Bauphysik: Weber Energie und Bauphysik AG
Fassadenplaner: SUTTERWEIDNER
Brandschutzplaner: Amstein + Walthert Bern
Gastroplaner: H PLUS S GmbH